Reverse Engineering of Train Braking Systems

2023

Context

For our work on the brake triangle, I was part of a team of four engineers tasked with reproducing new brake triangles compatible with the CC2200 and CC3300AC locomotives. We were required to manufacture two different brake triangles to address the problem of stock shortages, as these locomotives were very old and their spare parts were no longer available on the market. It was therefore necessary to produce their components locally.

The objective was to design a system that closely matched and remained fully compatible with these locomotives while ensuring acceptable durability and functional performance comparable to the original imported parts.

As part of the project requirements, we transitioned from the older Shielded Metal Arc Welding (SMAW) method—commonly known as arc welding with coated electrodes—to more advanced welding techniques: MIG-MAG (Metal Inert Gas – Metal Active Gas). This shift aimed to improve weld quality, structural integrity, and compliance with the structural standards and regulations of the Cameroonian railway system.

To facilitate this change, we were equipped with the Lincoln Electric Power MIG 360MP and 2 Fronius TransSteel 2700.

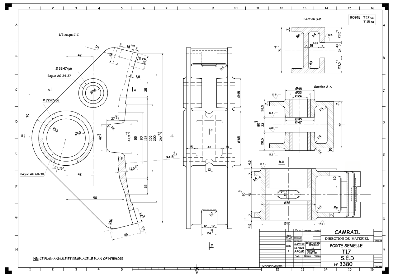
My specific objective in this project was to produce detailed 2D diagrams and 3D models, ensuring that all dimensions and tolerances remained within acceptable limits. This was essential to guarantee that the brake triangles could be easily integrated into the locomotives and perform the same function as the reference components. The task was conducted as a reverse engineering project, taking into account existing designs, spatial constraints, functional requirements, and local material availability.

Content

In this project, our team of four (consisting of Gille team lead, Mbella Jacques chief technician and his assistant Ricardo) produced two brake triangles: one for the CC2200 locomotives and one for the CC3300-AC locomotives. Each brake triangle had distinct specifications, including different diameters and dimensions, which required careful planning and collaboration within the team.

CC3300 Brake Triangle Development

For the CC3300, we utilized UPN profiles, which we bent and cut into the required shapes. Our team added end caps to achieve the correct mass while maintaining the necessary diameter. Following this, we reproduced the front shoes. I was responsible for creating detailed 2D drawings and 3D models of the front shoes. Using calipers, measuring tapes, and other traditional reverse engineering methods, I ensured that these components were not only accurately reproducible but also fully manufacturable, in alignment with our project objectives.

CC3300-AC Brake Triangle Development

For the CC3300-AC, we machined rectangular iron bars and shaped them into circular forms, closely matching the existing brake triangles. By applying traditional reverse engineering techniques—including manual measurement, geometric analysis, precise dimensioning, and tolerance verification—I produced precise and manufacturable 2D drawings. This approach ensured that each assembly fit accurately and that the components could fully reproduce their intended function.

Team Collaboration

During the project, I worked closely with my team. I helped in the organization of tasks. I also shared ideas and suggestions to help the project move forward (the ideas for the end caps were mine). By working together, we completed all the steps—from machining the raw material, welding the different components, to testing them—to ensure they matched the function and characteristics of the original brake triangles.

2D Drawing

Detailed CAD model of the braking shoes for CC2200 locomotive showing all dimensions and mounting points
Braking Shoes of the CC2200 Locomotive
CC3300-AC brake triangle assembly after successful field testing journey
CC3300-AC brake triangle after successfully travelling from Douala to Yaounde passing by Esseka and back (2023)
Manufactured braking shoes for CC_2200 locomotives showing final assembly
Manufactured Braking Shoes for CC_2200 Locomotives

Conclusion

Through this project, I learned an important lesson about the value of collaboration between designers and manufacturers. In my experience, when working in a design office, it is easy to assume that theoretical work—such as 3D modeling and detailed drawings—is sufficient to produce a component. We sometimes think we can complete a design without consulting the manufacturer.

However, this project demonstrated how critical the role of the manufacturer is. They not only help you understand appropriate tolerances based on the materials and machinery available but also enable you to complete the work more efficiently. For example, during the reproduction of the front shoes for the CC3300-AC locomotives, I initially applied tolerances that were not suitable for manufacturing because I assumed that their tools and capabilities were the same as those I had encountered in previous workplaces.

This approach cost the team a significant amount of time, as we constantly had to review details and ensure that the dimensions were both acceptable and manufacturable. From this experience, I gained a deeper understanding of practical dimensioning techniques and learned how to work humbly and effectively with the manufacturer. By consulting them during the design process, we were able to reduce errors and save time.

Key Lesson

"If you want to go fast, go alone; if you want to go far, go together." In my case, especially, working alone often led to mistakes, whereas collaborating closely with the team and manufacturers resulted in fewer errors and faster, more accurate outcomes.

Back to Projects